Description
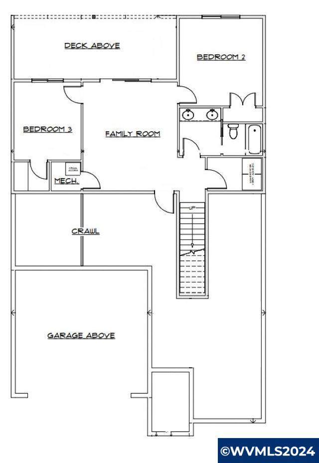
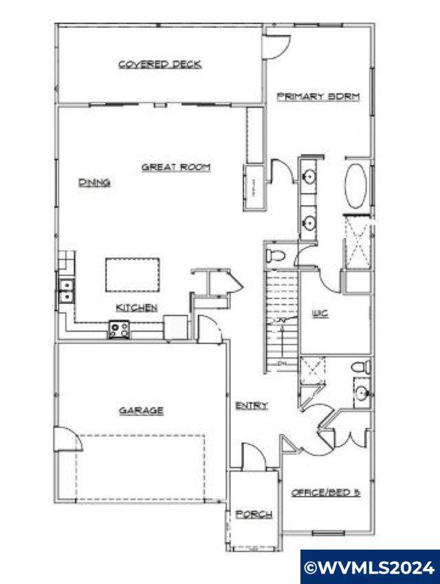
To be built by Celtic Homes (CCB #200095). Daylight basement plan w/ cov. back deck, primary on main level, office/bedroom, spacious living/dining/kitchen. Stacked stone fireplace, quartz counters, SS appl., soft close cust. cabinets, & tile backsplash. Spacious primary BR w/ ext access, full tile shower, tub, & dual vanity. Gas furnace w/ AC. Landscape front & back w/ UGS. Buyer to pick finishes w/ accepted offer. All photos of previous builds, front elevations for concept purposes only, design may vary. Home to be built with accepted offer
-
4BEDS
-
0.12ACRES
-
3BATHS
-
01/2 BATHS
-
2,624SQFT
-
$282$/SQFT
School Information
Description
To be built by Celtic Homes (CCB #200095). Daylight basement plan w/ cov. back deck, primary on main level, office/bedroom, spacious living/dining/kitchen. Stacked stone fireplace, quartz counters, SS appl., soft close cust. cabinets, & tile backsplash. Spacious primary BR w/ ext access, full tile shower, tub, & dual vanity. Gas furnace w/ AC. Landscape front & back w/ UGS. Buyer to pick finishes w/ accepted offer. All photos of previous builds, front elevations for concept purposes only, design may vary. Home to be built with accepted offer
© 2026 Based on information from Willamette Valley Multiple Listing Service, which neither guarantees nor is in any way responsible for its accuracy. All data is provided AS IS and with all faults. Data maintained by Willamette Valley Multiple Listing Service may not reflect all real estate activity in the market. Data last updated: 2026-01-19T00:08:38.61.